Mure og puss en klassisk villa
En klassisk 1,5-plans villa verdsettes høyt og passer for mange familier. Finja ønsker med denne DIY steg-for-steg-beskrivelsen å gjøre det enkelt å komme i gang med den pussede steinvillaen.
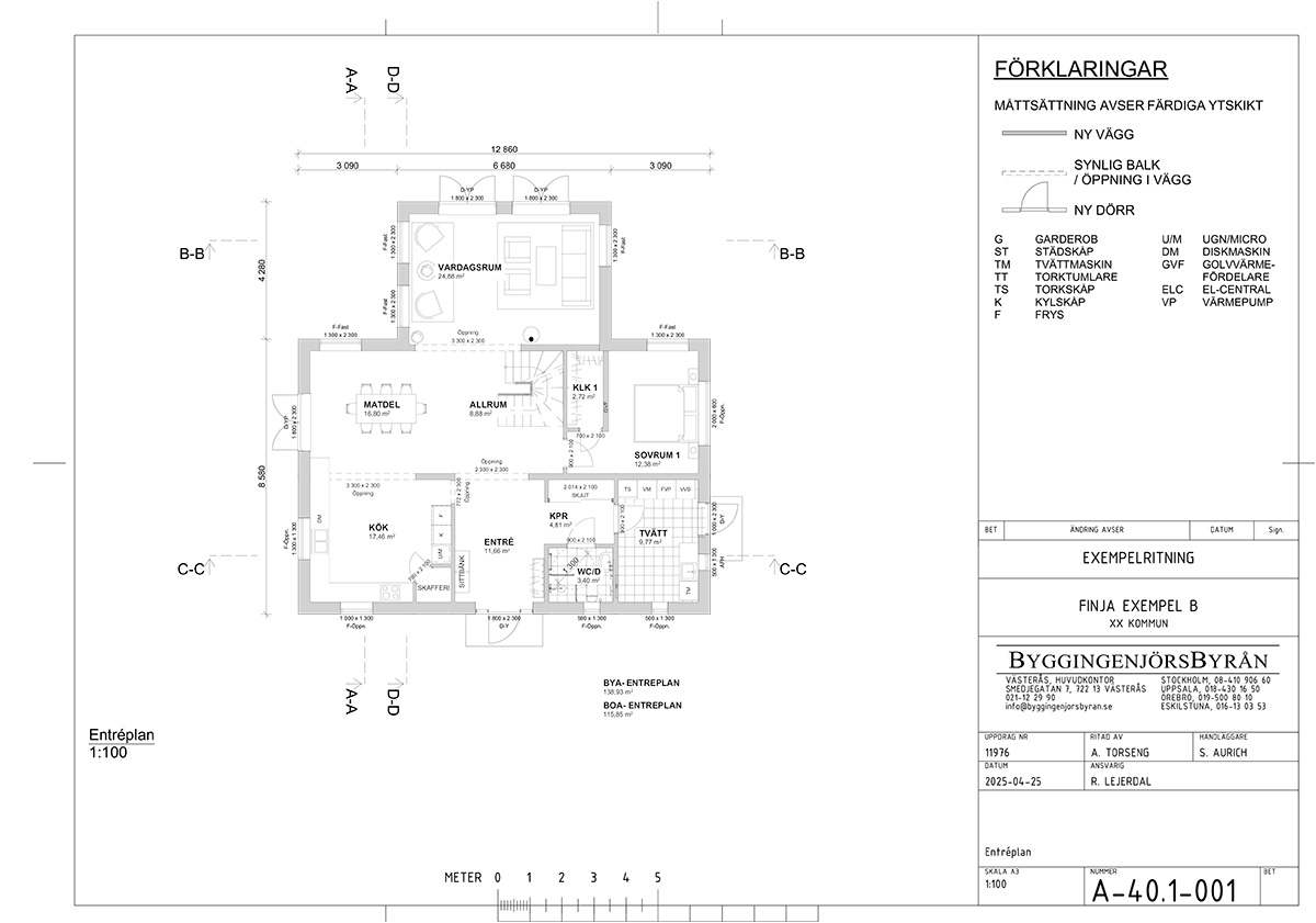
Vi anbefaler at du tar utgangspunkt i underlaget når du sammen med en lokal konstruktør eller entreprenør fastsetter de siste detaljene for huset og tomten.
Obs, vennligst noter at prisen er for Finjas produkter, og at en del av produktene som trengs til prosjektet må kjøpes fra byggevareforhandler.
Materialer - Produkter uten bilde i listen leveres ikke av Finja, og må kjøpes hos en byggevareforhandler.
Hvilke produkter brukes?
Finja tilbyr produkter av høy kvalitet til hele drømmehusprosjektet – fra grunnmur, vegger og puss til overflatebehandling. Nedenfor er de viktigste produktene som brukes i denne gjør-det-selv-beskrivelsen.
Grunn
Til grunnmuren brukes Finja Exakt-elementer som bryter kuldebroen med en ferdig utside av børstet betong. Som grunnisolasjon brukes isoleringsplater.
Vegger
Yttervegger mures med Finja Murmørtel Exakt og Finja Isolerblokk Exakt 350. Exakt-blokkene gir et fuktsikkert, klimavennlig og godt isolert hus. Kjernen av isolasjon midt i blokkene gjør huset energieffektivt. Mørtelen er spesialtilpasset for bruk med Isolerblokk Exakt og Finjas Murkasse Exakt.
Puss
Det finnes flere alternativer for hvordan veggene kan pusses. I dette eksempelet har vi nett fasaden med Finja Pussenett som festes med Finja Nettfeste Universal. Deretter er det pusset med Finja Puss & Murmørtel KC 50/50.
Overflatebehandling av fasade
Finja tilbyr flere ulike overflatebehandlinger med mange farger og overflatestrukturer som skaper gjennomfargede, estetisk tiltalende fasader med personlig preg. I dette eksempelet har vi valgt å male huset med silikatfarge.
Støpe grunn
Til grunnmuren velger vi Finjas Exakt-elementer. Dette er stabile kantelementer som bryter kuldebroen, bærer vekten av veggen og har en ferdig utside av børstet betong. Her gir vi et generelt eksempel på hvordan du kan forberede grunnmuren. Konsulter alltid en konstruktør for å få korrekte anvisninger basert på grunnforholdene på tomten din.
1. Forbered grunnmuren
Start med å fjerne matjord og grav ned til minst 400 mm under den endelige overkanten av grunnmuren. Hvis grunnen består av leire eller finmateriale, rull ut en geotekstil som dekker hele bygningens areal. Drener etter konstruktørens anvisninger.
Sett opp profiler og spenn opp murersnor i linje med ytterkanten av grunnmuren og i høyde med den ferdige overkanten. Mål langsidene og diagonalene
for å sikre at hjørnene er rette. Legg ut minst 150 mm makadam. Komprimer med vibroplate. Avrett overflaten med et avrettingsinstrument til den ligger 400 mm under murersnoren. Legg ut VA-ledninger og tomrør for elektrisitet.
2. Plasser grunnelementer
Plasser Exakt-elementene. Start med hjørnene. Sørg for at ytterkantene følger murersnoren. Plasser deretter de øvrige kantelementene.
For å kappe et element, mål og kapp med vinkelsliper og fugesag. Grunneleentens børstede overflate av betong gjør skjøtene mindre synlige. Sett sammen grunnelementene ved å feste én festekil per skjøt i overkant mellom hvert element. Fest også brede festekiler mellom de vertikale celleplastdelene, 2 stk per element. Fest én spikerplate per skjøt for å koble sammen elementenes
bunnplater.
Legg deretter ut det første laget med isolasjonsplater innenfor Exakt-elementene. Neste lag skal strekke seg 100 mm inn over elementenes bunnplate. Drei platene i det andre laget 90 grader slik at skjøtene forskyves mellom lagene. Det siste laget skal ha samme størrelse som det forrige, men platene skal dreies slik at de ligger i samme retning som i det første laget, slik at skjøtene forskyves. Fest platene sammen med plastspiker, ca. 4 stk per m².
3. Armer grunnmuren
Plasser armeringsavstandsstykker i den ytre og indre kantbjelken, 1 stk per 600 mm og per armeringsjern. Tre armeringsbøyler over fire armeringsjern. Plasser bøylene med 600 mm mellomrom og bind dem fast i armeringsjernene i alle hjørnene. Plasser de sammenkoblede armeringsjernene og bøylene i avstandsstykkene i den indre kantbjelken. Ved skjøting overlappes armeringsjernene med 500 mm, og i hjørnene bøyes de.
Hek på bøyler i jernene med 600 mm mellomrom i den nedre kroken og la dem peke oppover. Bind dem fast med bindetråd og bindetang. Plasser armeringsjern også i bøylens øvre krok og bind fast. Ved skjøting overlappes armeringsjernene med 500 mm, og i hjørnene bøyes de. Plasser armeringsavstandsstykker på isolasjonsplatene med ca. 3 stk per m². Legg armeringsnett i avstandsstykkene med 50 mm avstand til elementenes indre vertikale del. Overlapp nettene med 300 mm og bind dem sammen med bindetråd og bindetang. Bind også fast den indre kantbjelkens bøyler i armeringsnettene.
Sag 2 tynne spor per element, 50 mm dype, i den indre vertikale celleplastdelen. Trykk ned vinklet armeringsjern i sporene slik at den korteste siden er vinklet nedover over de øvre armeringsjernene i den ytre kantbjelken. Bind fast jernene i armeringsnettene. Fyll opp 2/3 av grunnens utside med makadam. I kaldere breddegrader kan man frostsikre svakt skrånende mark utover fra grunnmuren med Isolasjonsplate S100, 50 mm, rett kant, utenfor Exakt-elementenes base.
4. Støpe grunn
Nå er det klart for å støpe grunnmuren. Start med å fylle den indre og ytre kantbjelken til halv høyde. Vibrer betongen i indre og ytre kantbjelke med vibratorstav. Fyll deretter resten av grunnmuren, altså opp til elementenes overkant. Vibrer igjen betongen i indre og ytre kantbjelke med vibratorstav og vibrer resten av grunnmuren med rettholt eller annet egnet verktøy.
La betongen herde i ca. 2–4 timer og puss deretter med pussebrett.
Glatt deretter betongen fra utsiden og inn mot midten med stålsverd.Vann hele betongoverflaten dagen etter støping. Dekk betongen med plastfolie i fem døgn. Ettervann 2–3 ganger i løpet av de neste fem døgnene. La til slutt betongen herde i ytterligere to døgn. Nå er grunnmuren til huset klar og klar for muring av vegger.
Mure yttervegger
Ytterveggene mures med Finja Mursystem Exakt som gir et fuktsikkert, klimavennlig og godt isolert hus. Kjernen av isolasjon midt i Isolerblokk Exakt gjør huset energieffektivt. Murmørtel Exakt er spesielt tilpasset Isolerblokk Exakt og Mørtelkasse Exakt.
1. Forberedelser
Monter og lodd inn hjørnestolper som er høyere enn veggen i første etasje skal bli. Stabiliser disse med skråstøtter. Marker hver skiftes høyde, 200 mm, på den loddrette hjørnestolpen med en blyant. Stram murersnoren mellom stolpene i høyde med den første streken for å kunne følge denne ved muringen.
Monter glidesjikt i henhold til konstruktørens anvisning. Glidesjiktplaten monteres med den bøyde kanten utenfor grunnmuren. Platen kan ved behovmonteres med utendørs fugemasse mot underlaget. Glidesjiktplaten skal overlappes med 50 mm. Gjærsag i hjørnene. Den smalere gummien legges på platen ved den oppbøyde kanten og den bredere gummien innenfor platen på grunnmuren. Glidesjikt skal ikke monteres i døråpninger. Glidesjiktgummien skal overlappes i hjørnene. For flere varianter av glidesjikt, se Prosjekteringsanvisning Exakt på finja.no.
2. Begynn å mure
Nå er det tid for å legge blokkene i første skift. Ved første skift brukes Murmørtel Exakt, eller hvis underlaget er ujevnt, Murmørtel B. Til resten av veggen brukes Murmørtel Exakt. Bland mørtelen i henhold til anvisningene på emballasjen. Tilsett alltid vann først. Mørtelen kan til første skift blandes i en tykkere konsistens. Bland ikke mer enn du trenger for øyeblikket.
Legg ut mørtelen med murskje på glidesjiktet i to strenger og i blokkens bredde. Begynn i et hjørne med et Hjørne-/avslutningsblokk Exakt. Kapp 350 mm av den ene siden på blokken med en bajonettsag eller alligatorsag for å sikre at kuldebroen brytes. Fortsett deretter å mure med Isolerblokk Exakt. Blokkene skal ligge tett mot hverandre. Det legges ikke mørtel i de vertikale fugene. Mål og kapp blokkene ved avslutninger om nødvendig. Avslutt rundt dør- og vindusåpninger med Hjørne-/avslutningsblokk Exakt Juster etter snoren og sørg for at overkanten på blokkene er 200 mm over grunnmuren. Det er viktig at første skift er helt i vater for å oppnå et godt resultat. Flytt snoren opp 200 mm og mur neste skift. Fyll Murboksen Exakt med Murmørtel Exakt og dra fremover slik at to strenger mørtel dannes. Murboksen er en rask og praktisk måte å påføre riktig mengde mørtel. Hell mørtelen i kassen, plasser på forrige skift med blokker, åpne luken og dra. Luken lukkes ved avslutning.
3. Armer mellom skift
Rull etter hvert ut Armering Exakt. Overlapp > 300 mm og fest armeringen ved å dra med festekam slik at mørtelen flyter opp mellom maskene. Følg armeringsgangen. Armer også over og under åpninger der armeringen ikke sammenfaller med generell armering.
4. Fortsett muringen
Påfør Murmørtel Exakt med murskje i hjørnet for å kunne legge lag to. Fortsett å påføre murbruk med Mørtelkasse Exakt, i to parallelle strenger.
Mur i henhold til konstruktørens tegning. Følg armeringsforløpet. Vær oppmerksom på å legge ekstra armering ved åpninger. Mur i forband med minst en fjerdedels blokkforskyvning for hvert lag. Kontroller fylling av liggefuger og at blokkene på støt-/kortside ligger tett inntil hverandre. Mindre sprekker kan forekomme, disse tettes med mørtel før pussing. Sørg for at blokkene følger murersnoren og at de ligger i vater.
Når du kommer opp til dør- og vindusåpninger, er det på tide å mure et skift med Finja Finja Tilpasn.blokk Exakt 350x95x600. Dette for å få den endelige høyden til å stemme med døråpningen. Kapp hjørneblokkene på samme måte som tidligere for å bryte kuldebroen.
5. Monter overligger over åpninger
Over dør- og vindusåpninger monteres en overligger av passende lengde. Monter i Finja Murmørtel Exakt. Overliggern skal strekke seg minst 250 mm inn på hver side over veggen, eller i henhold til gjeldende konstruksjonstegning. Se finja.no for aktuelt utvalg av Overligger Exakt.
6. Mur med U-blokk
Mur første etasjens siste skift med U-blokk. Mur med Finja Murmørtel Exakt. Dersom tykkere fuge ønskes, brukes Murbruk B. Gjærsag blokkene i hjørnene i 45 grader slik at en sammenhengende støpekanal dannes. Mur resten av skiftet med U-blokk.
Monter U-blokksisolasjon på høykant ytterst i U-blokkene. Bland Finja Grovbetong B30 i henhold til anvisningene på emballasjen og tidligere instruksjoner. Fyll blokkene med betongen og armer med to liggende bindejern. Overlapp bindejernene med 500 mm. Glatt ut betongen med murskje.La det tørke. Monter glidesjikt til andre etasje i henhold til konstruktørens anvisning.
7. Etasjeskille
For å få et opplag for etasjeskillet brukes Isolerblokk Exakt der den indre lettklinkerdelen er saget bort. Påfør Murmørtel Exakt på lettklinkeroverflaten langs veggens utside. Tilpass blokker av Isolerblokk Exakt, sag bort den indre lettklinkerdelen på alle blokkene og monter deretter de tilpassede blokkene i Murmørtel Exakt. Monter/støp etasjeskillet.
8. Mur etasje to
Monter glidesjikt i henhold til konstruktørens anvisning, for eksempel glidesjiktsgummi. Påfør Murbruk Exakt i to strenger og mur i henhold til tidligere instruksjoner.
Mur andre etasje på samme måte som første etasje og følg armeringsforløpet. Avslutt med U-blokk i henhold til tidligere instruksjoner. Oppå U-blokkene monteres glidesjikt i henhold til konstruktørens anvisning.
Tak
Takstoler kan bygges på mange forskjellige måter, så kontakt en takstolsleverandør og/eller en konstruktør for den beste løsningen.
1. Grunning
Vegger grunnes med Grunningsmørtel A. Bland i henhold til anvisningene på emballasjen. Tilsett alltid vann først. Bland kun den mengden mørtel som trengs for øyeblikket.
Fukt veggflaten ved behov. Bruk slange med finfordelende munnstykke. Tynngrunn alle vegger samtidig med grunningsmørtel for å sikre god vedheft mellom puss og underlag. Bruk traktpumpe eller murskje. Grunn også smygene i alle åpninger.
Børst den grunnede flaten med en kalkkost for å sikre at fuger og blokker dekkes. Overflaten skal fortsatt være grov. Gjør det samme på alle vegger og i alle åpninger. La grunningsmørtelen tørke til den er matt før netting.
2. Netting
Nett hele flaten med pussenett. Brett over 200 mm ved ytterhjørner. Fest med nettfeste og varmforsinket spiker. Nettet skal overlappe minst 50 mm. Brett nettet inn i smyget slik at hele smyget dekkes. Nettet skal også dekke 150 mm av veggens innside. Gjør det samme rundt hele åpningen og ved øvrige åpninger.
Ved alle hjørner rundt åpninger i veggen monteres ekstra forsterkningsnett i formatet 250 x 500 mm diagonalt. Dersom andre nett forekommer, monteres alltid disse diagonale nettene ytterst. Fortsett på samme måte rundt resten av huset.
3. Pussing
Bland i henhold til anvisningene på emballasjen. Tilsett alltid vann først. Bland kun den mengden mørtel du trenger for øyeblikket.
Påfør pussmørtelen når grunningsmørtelen har tørket. Start med å montere en planke på motsatt kant av ytterhjørnet. Påfør pussmørtel i loddrette strenger på veggen med murskje. Monter lekter egnet for formålet i pussmørtelen. Planken og lektene fungerer som avtrekksbaner for å få en jevn puss. Avstanden mellom lektene skal være lik eller mindre enn rettholtens bredde.
Kast på mørtel på veggen mellom lektene med murskje til flaten mellom planke og lekt er dekket. Dra rettholten langs avtrekksbanene, planke/lekt, nedenfra og opp med sagende bevegelser. Pussen skal være like tykk overalt, totalt 10–12 mm.
Påfør pussmørtel til en ny avtrekksbane av lekt. Kast på mørtel på veggen og dra med rettholten mellom avtrekksbanene.
Fjern planken i ytterhjørnet. Flytt lekten og fest med pussmørtel for en ny avtrekksbane. Fyll inn med pussmørtel der lekten har sittet og glatt ut med en innsettingsskje.
4. Puss smyger
Når overflaten har tørket men ikke herdet ferdig, skal den forberedes for overflatebehandling. Riv hele overflaten med en rivbrett, eller lignende, i sirkulære bevegelser. Ettervann overflaten ved behov. Dette for å redusere risikoen for krympesprekker. Bruk slange med finfordelende munnstykke.
5. Forbered for overflatebehandling av fasade
Når overflaten har tørket men ikke herdet ferdig, skal den forberedes for overflatebehandling. Riv hele overflaten med en rivbrett, eller lignende, i sirkulære bevegelser. Ettervann overflaten ved behov. Dette for å redusere risikoen for krympesprekker. Bruk slange med finfordelende munnstykke.
Overflatebehandling av fasade
Tid for å gi huset sitt endelige utseende.
1. Forbered for overflatebehandling
Når overflaten har tørket men ikke herdet ferdig, skal den forberedes for overflatebehandling. Filte overflaten med en fuktig filtebrett i myke,
sirkulære bevegelser. Puss øvrige vegger og åpninger på samme måte. Jevn ut ytterhjørner med en innsettingsskje. Ettervann ved behov for å redusere
risikoen for krympesprekker. Bruk slange med finfordelende munnstykke. La pussen tørke til den er “mattørr”
2. Overflatebehandle
Velg overflatepuss med hensyn til underlaget – overflatepuss, fasademaling eller edelpuss. Her har vi malt med silikatfarge.
Til slutt
Innvendige vegger, vinduer, dører, beslag med mer monteres i henhold til leverandørens anvisninger og deres behov. Nå er huset helt ferdig og det er tid for å begynne innredningen – og det er da det virkelig morsomme begynner. Lykke til!
Hva inspirerer deg?
Sett ditt eget preg på drømmehuset gjennom en endret planløsning eller fargevalg på huset. Ta gjerne et bilde og send det til Finjapå e-post: info@finja.no, for å få prosjektet ditt publisert i våre digitale kanaler.

















